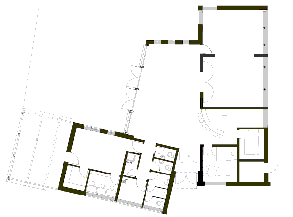
Wenn Ihr auf die einzelnen Räume klickt, werden Bilder dazu angezeigt. Viel Spass bei den gewonnen Einsichten. Solltet Ihr Fragen haben oder das Haus selbst in Augenschein nehmen wollen, helfen wir Euch gern.

Wenn Ihr auf die einzelnen Räume klickt, werden Bilder dazu angezeigt. Viel Spass bei den gewonnen Einsichten. Solltet Ihr Fragen haben oder das Haus selbst in Augenschein nehmen wollen, helfen wir Euch gern.
